top of page
Create Your First Project
Start adding your projects to your portfolio. Click on "Manage Projects" to get started
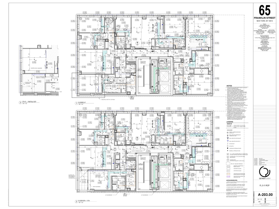
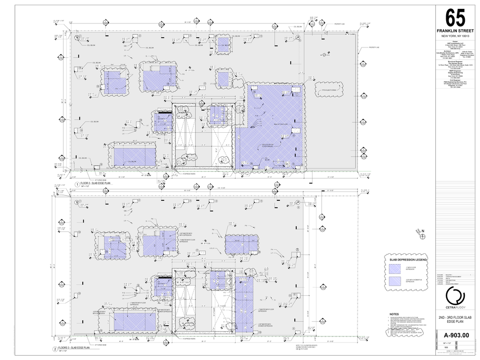
65 Franklin - 14 story new luxury residential high-rise construction.
Role
I led the refinement of the core and shell design from the DD set and managed coordination efforts among multiple consultants and vendors. This included close collaboration with MEP, Civil, and Structural Engineers, as well as lighting, fitness, and door hardware consultants, to deliver a comprehensive and well-coordinated set of construction drawings.
Project Location: New York, NY
Role: PA/PM
Design Phase: DD to 100% Contract Document, 2018 - 2022
Architectural firm: CetraRuddy, NY, NY
































bottom of page